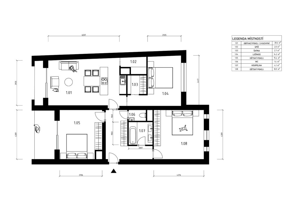
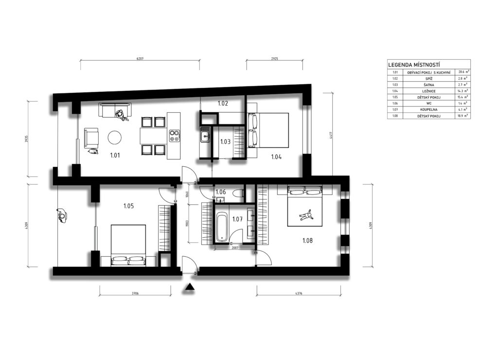
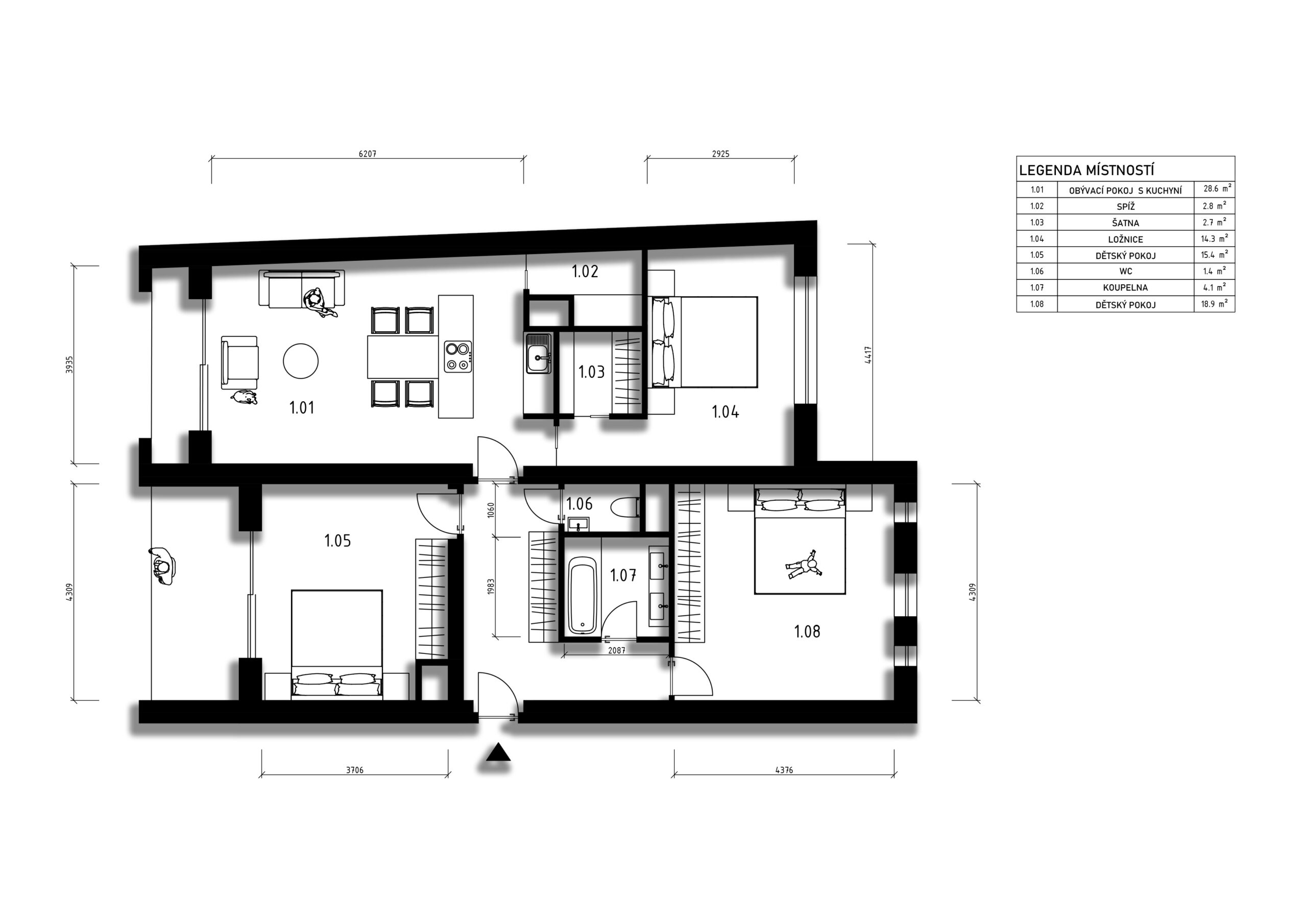
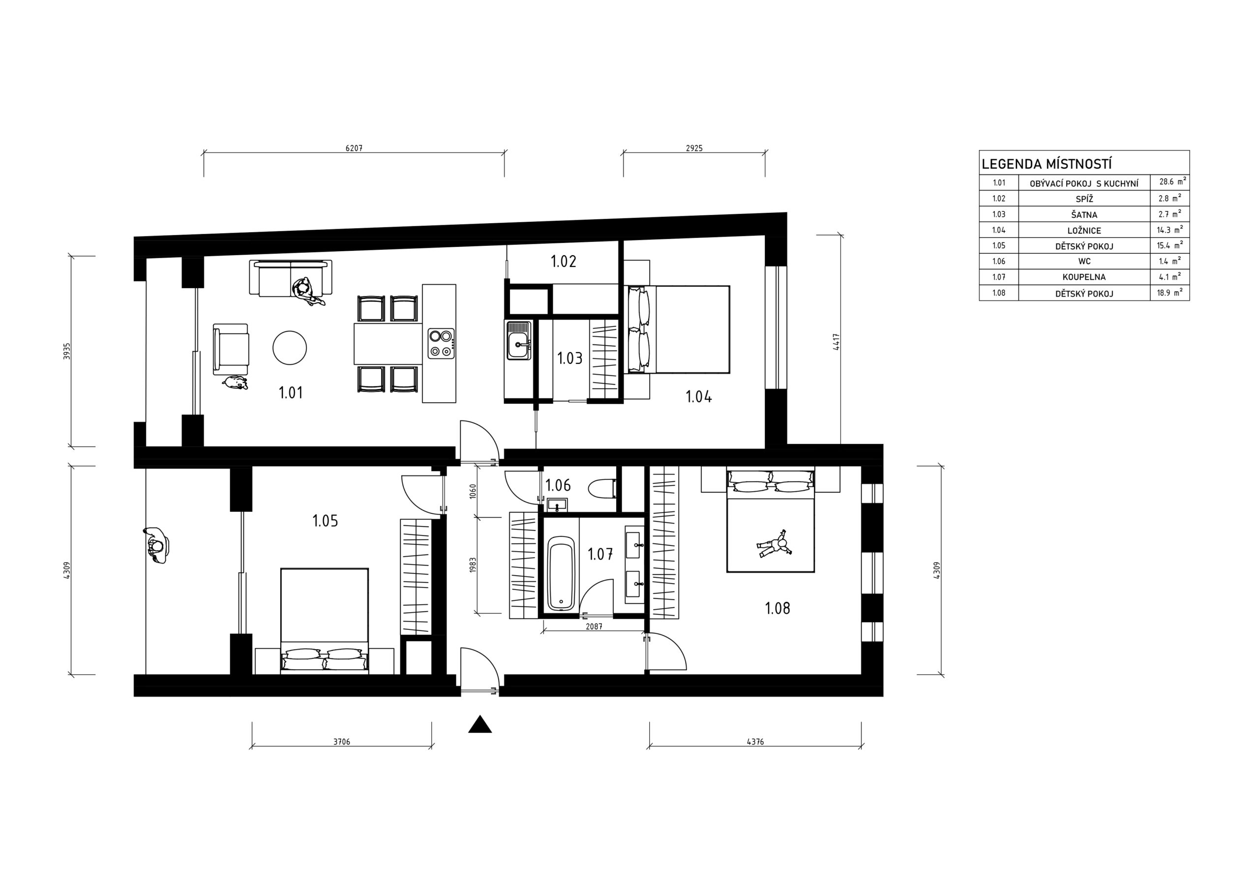
Půdorysy
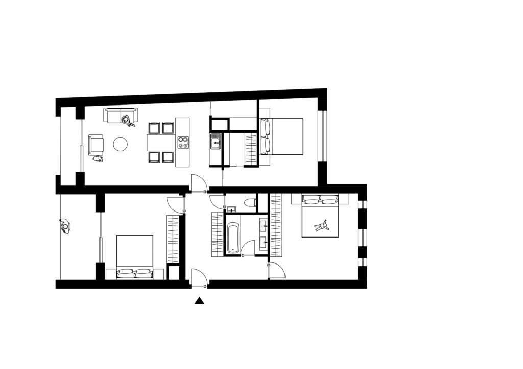
Půdorys TYP 1
Minimalistický 2D půdorys graficky inspirovaný technickým výkresem.
od 230 Kč
Cena projektu závisí na počtu pokojů a rozsahu doplňkových služeb – viz ceník.
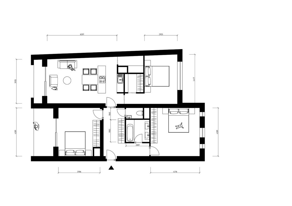
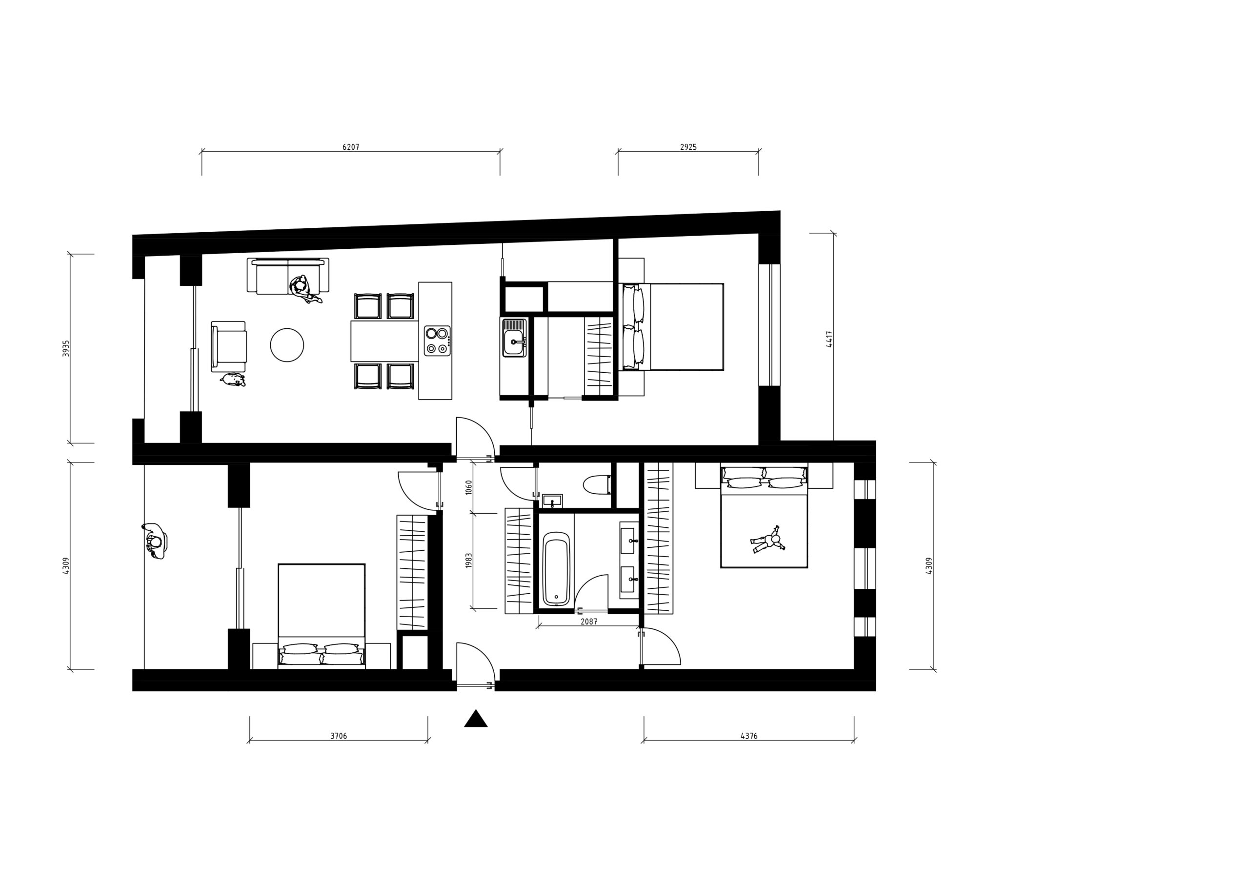
Půdorys TYP 2
Realistický 2D půdorys pro lepší představu materiálové palety.
od 300 Kč
Cena projektu závisí na počtu pokojů a rozsahu doplňkových služeb – viz ceník.
Vizualizace
Interiér
chata pod pradědem
Vizualizace obývacího pokoje s kuchyní v bytovém domě poblíž Vrbna pod Pradědem.
6 600 Kč
Finální cena za vymodelování jednoho pokoje a vytvoření všech 5 snímků, včetně úprav a postprodukce.
BREDA Coffee
Vizualizace nové kavárny FoxCoffee s názvem BREDA COFFEE v historickém nákupním centru Breda v Opavě.
7 900 Kč
Finální cena za vymodelování jedné místnosti a vytvoření všech 3 snímků, včetně úprav a postprodukce.
galerie v Uherském Hradišti
Vizualizace 4 snímků ze 3 místností pro architektonickou soutěž.
7 300 Kč
Finální cena za vymodelování 3D modelu třech místností a vytvoření 4 snímků, včetně úprav a postprodukce.
Exteriér
pozemky v obci Služovice
Vizualizace nově vznikajících stavebních pozemků v obci Služovice u Opavy.
14 900 Kč
Finální cena za celou zakázku. V ceně byla zahrnuta tvorba 3D modelů všech domů, 3D modelu okolí a cest, různé pohledy z exteriéru, zasazení do mapy, vyznačení jednotlivých pozemků, úpravy a postprodukce.
pozemky v obci Služovice
Vizualizace nově vznikajících stavebních pozemků v obci Služovice u Opavy.
15 900 Kč
Finální cena za celou zakázku. V ceně byla zahrnuta tvorba 3D modelů všech domů, 3D modelu okolí a cest, různé pohledy z exteriéru, zasazení do mapy, vyznačení jednotlivých pozemků, úpravy a postprodukce.
Bytový dům v Praze
Vizualizace nově vznikajícího bytového domu v Praze – Smíchov.
5 900 Kč
Finální cena za celou zakázku. V ceně byla zahrnuta tvorba 3D modelu bytového domu, 3D modelu okolí, pohled z exteriéru, úpravy a postprodukce.
Ubytovací komplex Šléglov
Vizualizace nově vznikajícího rekreačního střediska v obci Šléglov.
6 300 Kč
Finální cena za celou zakázku. V ceně byla zahrnuta tvorba 3D modelů všech domů, 3D modelu okolí, různé pohledy z exteriéru, úpravy a postprodukce.
Nová lokalita v obci Vrbka
Vizualizace nově vznikajících stavebních pozemů v obci Vrbka u Opavy
14 500 Kč
Finální cena za celou zakázku. V ceně byla zahrnuta tvorba 3D modelů všech domů, 3D modelu okolí a cest, různé pohledy z exteriéru, zasazení do mapy, vyznačení jednotlivých pozemků, úpravy a postprodukce.
Chata pod Pradědem
Vizualizace chaty poblíž Vrbna pod Pradědem.
7 900 Kč
Finální cena za celou zakázku. V ceně byla zahrnuta tvorba 3D modelu chaty, 3D modelu okolí, pohled z exteriéru, úpravy a postprodukce.
Ceník služeb vizualizace a půdorysů
Orientační ceny - každý projekt naceníme individuálně před schválením
📐 PŮDORYSY
230 Kč
/ půdorys
Zahrnuto v ceně:
✔ Tvorba 2D půdorysu podle dodaných podkladů
✔ Základní označení místností
✔ Umístění sanitárních předmětů a kuchyňské linky
✔ Export do PDF a PNG
✔ Konzultace a 1 revize
Příplatkové služby: Tvorba realistického 3D půdorysu + 70 Kč
Nábytek + 50 Kč
Kóty + 50 Kč
Označení a legenda místností + 50 Kč
Dispozice větší než 3+1 + 50 Kč/místnost
Stínování nebo barevná úprava – zdarma
Rychlé zpracování do 24h + 100 Kč
Každá další revize + 50 Kč / úprava
Zaměření prostor (na místě) – individuálně
🛋️ VIZUALIZACE INTERIÉRU
2 000 Kč
/ vizualizace
Zahrnuto v ceně:
✔ 3D modelování interiéru
✔ 1 pohled z místnosti ve vysokém rozlišení
✔ Základní návrh osvětlení a atmosféry
✔ 1 úprava na základě zpětné vazby
Příplatkové služby:
➕ Každý další pohled + 400 Kč
➕ Návrh interiéru na míru (návrh dispozice, výběr nábytku, styl) – dle rozsahu
➕ Expresní dodání do 48h + 1 500 Kč
➕ Video vizualizace + 1 000 Kč
🌳 VIZUALIZACE EXTERIÉRU
3 500 Kč
/ vizualizace
Vizualizace CELÉ LOKALITY bude naceněna individuálně, orientační ceny jsou uvedeny výše u jednotlivých projektů
Zahrnuto v ceně:
✔ 3D modelování exteriéru stavby
✔ Základní výběr materiálů a barev
✔ 1 pohled z exteriéru ve vysokém rozlišení
✔ Návrh denní atmosféry
✔ 1 úprava zdarma
Příplatekové služby:
➕ Každý další pohled + 1 000 Kč
➕ Detailní návrh zahrady / okolí + 2 000 Kč
➕ Noční osvětlení a atmosféra + 600 Kč
➕ Rychlé dodání do 72h + 1 500 Kč
➕ Animace nebo video – individuální cena
Kontaktní údaje
Telefonní číslo
IČO
22516603
Provozní doba
Po - Pá
8:00 - 16:00
Reakce na email do 24h.


























































